Rentables Anlageobjekt: Mehrfamilienhaus in Ense-Bremen mit starkem Wertsteigerungspotenzial
Objektart
Adresse
Objektdaten
Informationen
Ausstattung
Details
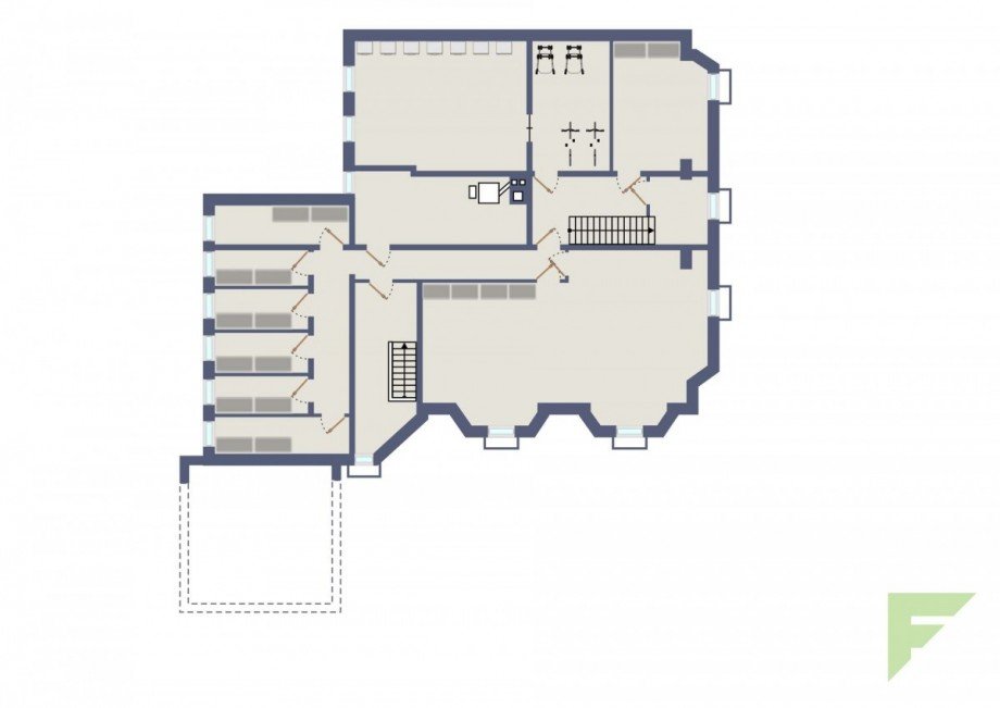
Wir präsentieren Kapitalanlegern eine einzigartige Investitionschance in Ense-Bremen: Ein gepflegtes Mehrfamilienhaus mit jährlichen Mieteinnahmen von 42.000 EUR und 12 PKW-Stellplätzen. Errichtet im Jahr 1985, überzeugt die Immobilie mit ihrer Massivbauweise und einer Gesamtfläche von 594 m², die sich auf 451 m² Wohnfläche über 7 Wohnungen und 143 m² Gewerbefläche in 2 Ladenlokalen verteilt.
Über vier Etagen erstreckt und komplett unterkellert bietet das Gebäude zusätzlichen Stauraum. Die Wohnungen und die Ladenlokale im Erdgeschoss erhöhen durch ihren individuellen Charme und ihre Funktionalität die Anziehungskraft dieser Kapitalanlage. Terrassen und Balkone schaffen externe Wohlfühlbereiche, die zum Genuss der ruhigen und freundlichen Atmosphäre beitragen.
Dieses Angebot besticht durch gepflegten Zustand, moderne Annehmlichkeiten und seine attraktive Lage, was es sowohl für Mieter als auch für Investoren interessant macht. Es verspricht eine stabile Wertentwicklung und ist eine ausgezeichnete Ergänzung für Ihr Investmentportfolio.
Für Details oder eine Besichtigung kontaktieren Sie uns gerne. Ergreifen Sie die Chance auf eine attraktive Kapitalanlage in Ense-Bremen mit soliden Mieteinnahmen und optimalen Parkmöglichkeiten. Wir freuen uns, Ihnen dieses Top-Investmentobjekt vorzustellen.
Das Mehrfamilienhaus liegt in Ense-Bremen. Die Lage bietet eine Kombination aus ruhigem Wohnen und guter Infrastruktur. Das Objekt befindet sich in einer Gegend, die für ihre Naturkulisse und gleichzeitig gute Verkehrsanbindung bekannt ist.
In der Nähe sind alle Einrichtungen für den täglichen Bedarf vorhanden, inklusive Einkaufsmöglichkeiten, Schulen und Gesundheitszentren. Ense-Bremen bietet eine reiche Auswahl an Freizeit- und Kulturangeboten. Die Anbindung an das Verkehrsnetz ist ausgezeichnet, was das Mehrfamilienhaus für Mieter besonders attraktiv macht.
Energieausweis (Bedarfsausweis)
110,40 kWh / (m²*a) Endenergiebedarf
110,40 kWh / (m²*a) Endenergiebedarf
110,40 kWh / (m²*a) Endenergiebedarf
Weitere Informationen
| Wesentlicher Energieträger | GAS |
| Energieausweis gültig bis | 2024-09-10 |
| Energieausweis Jahrgang | ab dem 1.5.2014 |
| Energieausweis Werteklasse | D |
| Energieausweis Baujahr | 1985 |
| Energieausweis Gebäudeart | Wohngebäude |
| Heizung | Zentralheizung |
| Befeuerung | Gas |
