Objektart
Adresse
Objektdaten
Informationen
Ausstattung
Details
In zentraler und gut angebundener Lage von Meschede wartet dieses Mehrfamilienhaus auf neue Ideen und eine tatkräftige Hand. Auf einem großzügigen Grundstück von ca. 2.388 m² gelegen, bietet das Objekt rund 386 m² Wohnfläche und zusätzlich ca. 210 m² Nutzfläche - genug Raum für vielfältige Nutzungsmöglichkeiten.
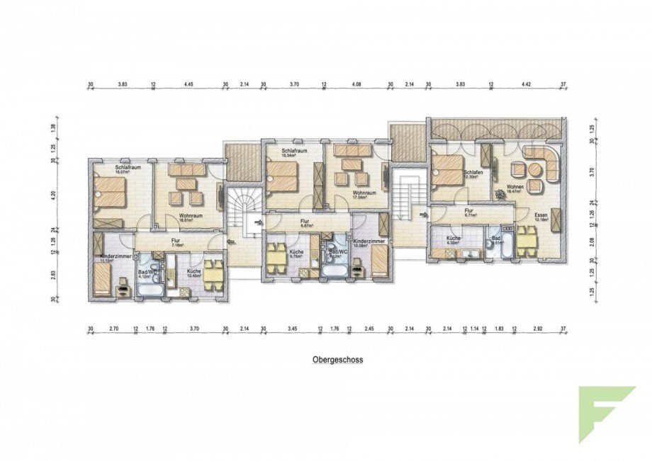
Das Haus stammt aus dem Jahr 1959 und beherbergt insgesamt sechs Wohneinheiten. Derzeit ist nur eine Wohnung vermietet. Drei weitere Wohnungen stehen leer und können kurzfristig renoviert und neu vermietet werden. Zwei Einheiten wurden zuletzt zusammengelegt und als Büro genutzt. Hier müsste die Technik zurückgebaut und je ein Bad neu eingebaut werden, um sie wieder als separate Wohnungen nutzen zu können.
Die Basis stimmt: In allen Wohnungen wurden moderne Gasthermen (Baujahr ca. 2025) eingebaut, was für eine effiziente Heiztechnik sorgt. Zudem verfügen alle Einheiten über einen Balkon oder eine Terrasse - ein echtes Plus für Mieter.
Für Kapitalanleger bietet sich hier eine spannende Möglichkeit: Durch die Sanierung der leerstehenden Wohnungen und die Rückführung des Büros in Wohnraum lässt sich mittelfristig eine attraktive Rendite erzielen. Zwar besteht in vielen Bereichen Renovierungsbedarf, doch gerade darin liegt das Entwicklungspotenzial - sowohl gestalterisch als auch wirtschaftlich.
Ein besonderes Extra: Im Keller des Hauses befindet sich ein alter Bunker. Ob als Lagerfläche oder für kreative Ideen - hier steckt zusätzlicher Nutzwert drin.
Die Lage an der Mallinckrodtstraße überzeugt durch gute Infrastruktur und solide Vermietungsperspektiven. Eine interessante Gelegenheit für Investoren, die Potenzial erkennen und nutzen möchten.
6 Wohneinheiten (eine vermietet, drei leer, zwei als Büro genutzt)
Wohnfläche: ca. 386
Nutzfläche: ca. 210
Grundstück: ca. 2.388
Baujahr: 1959
Moderne Gasthermen in allen Einheiten
Alle Wohnungen mit Balkon oder Terrasse
Keller mit Bunkerraum
Rückbau/Umbau erforderlich (vor allem Büro -> Wohnen)
Die Immobilie befindet sich in der Mallinckrodtstraße 20 in 59872 Meschede - einer gut angebundenen Wohnlage mit gewachsener Infrastruktur.
Fußläufig erreichbar sind Supermärkte, Bäckereien, Ärzte, Apotheken, Kindergärten und Schulen. Auch die Fachhochschule Südwestfalen ist nur wenige Minuten entfernt - ideal für studentisches Wohnen.
Der Bahnhof Meschede bietet regelmäßige Verbindungen in Richtung Dortmund, Hagen und Kassel. Über die B55 und A46 ist die Region hervorragend an das Ruhrgebiet angebunden.
Erholungsgebiete wie der Hennesee und der Arnsberger Wald liegen direkt vor der Haustür - ein echter Mehrwert für Freizeit, Sport und Lebensqualität.
Energieausweis (Bedarfsausweis)
291,36 kWh / (m²*a) Endenergiebedarf
291,36 kWh / (m²*a) Endenergiebedarf
291,36 kWh / (m²*a) Endenergiebedarf
Weitere Informationen
| Wesentlicher Energieträger | GAS |
| Energieausweis gültig bis | 2035-09-15 |
| Energieausweis Jahrgang | ab dem 1.5.2014 |
| Energieausweis Werteklasse | H |
| Energieausweis Baujahr | 1959 |
| Energieausweis Gebäudeart | Wohngebäude |
| Heizung | Etagenheizung |
| Befeuerung | Gas |
